1. Accueil
  2. Barrières DFCI
  3. Barrières pivotantes
  4. BARRIÈRE DFCI PIVOTANTE AVEC CLEF POMPIERS VILLE DE MARSEILLE MÉTROPOLE ET PORT AUTONOME
Retour

BARRIÈRE DFCI PIVOTANTE AVEC CLEF POMPIERS VILLE DE MARSEILLE MÉTROPOLE ET PORT AUTONOME

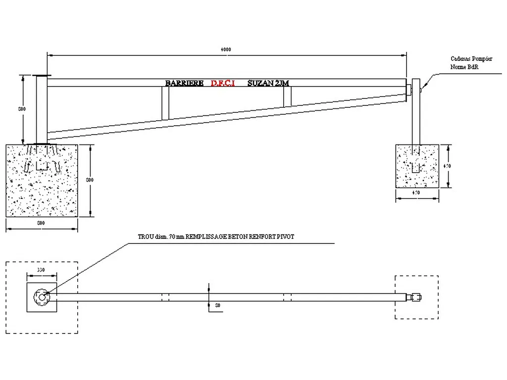
LA BARRIERE SUZAN 2JM 4 METRES  QUE NOUS FABRIQUONS EST CONçU POUR LE SERVICE ENVIRONNEMENT PARC ET JARDIN DE LA VILLE DE MARSEILLE DEPUIS 25 ANS  .

AUSSI NOUS FOURNISSONS LA BARRIERE A LA VILLE PAR LES ENTREPRISE AVEC LES CADENAS LES CLEFS DFCI EN ALU NORME BDR  DE 9 ET 11 POUR LA COMMUNAUTE URBAINE

QUI FOURNIT LE SERVICE ENVIRONNEMENT DE LA VILLE DE MARSEILLE  , SUZAN 2JM AVEC LA BARRIERE DFCI  SPECIAL BDR 

QUI FOURNIT LE SERVICE PARC ET JARDIN DE LA VILLE DE MARSEILLE  POUR LES CADENAS DFCI ET LES CLEF DFCI BDR ,  SUZAN 2jm 

JE CHERCHE LA BARRIERE DU CONSEIL GENERAL JE NE SAIS PAS QUI LA FABRIQUE DANS LES BOUCHES DU RHONE ? 

NE CHECHEZ PLUS !! SUZAN 2JM  EST LA REFERENCE DANS LE DOMAINE DU DFCI  / CLEF BARRIERE CADENAS POMPIERS  POUR LE CENTRE VILLE ET LE CHEMIN FORESTIERS 

LES POMPIERS  DES BOUCHES DU RHONE VOUS LE DIRONT POUR LA REFERENCE  

FAITES NOUS CONFIANCE NOUS SOMMES LE FABRICANT EXCLUSIF !DANS LE DEPARTEMENT 

LES ENTREPRISES TP DE LA REGION MARSEILLE   SE SERVENT CHEZ NOUS POUR LA METROPOLE URBAINE DE MARSEILLE .

LA BARRIERE BASE OU HAUTE   C' EST SUZAN 2 JM QUI VOUS LA FOURNIT DANS LES MEILLEURS DELAIS  CAR NOUS SOMMES UNE ENTREPRISE REACTIVE 

LA BARRIERE DE QUALITE POUR LE PORT AUTONOME C' EST SUZAN 2 JM QUI LA FABRIQUE  POUR MARSEILLE  AVEC  PEINTURE AU FOUR 

COMMENT TROUVER LA BARRIERE  POMPIERS HOMOLOGUEE POUR LA METROPOLE  MARSEILLE ? 

 JE CHERCHE LA BARRIERE POMPIERS SUR MESURE  STANDARD POUR LA METROPOLE  QUI EST LE FABRICANT EXCLUSIF ?  SUZAN 2JM  

QUI EST LE FABRICANT DE BARRIERE  DFCI STANDARD ET SUR MESURE A MARSEILLE ?  SUZAN 2JM 

QUI EST LE PREMIER VENDUER DE BARRIERE SUR MARSEILLE C'EST SUZAN 2 JM 

 

Publié le : 17/04/2018
Mis à jour le : 09/04/2026
Partager :
Nous écrire
Les champs indiqués par un astérisque (*) sont obligatoires