1. Accueil
  2. Barrières DFCI
  3. Barrières pivotantes
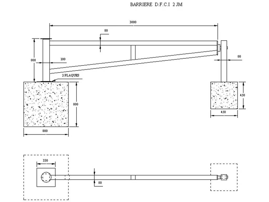
  4. BARRIERE DFCI PIVOTANTE ACCES POMPIERS NORME BDR AVEC CADENAS ET CLEF
Retour

BARRIERE DFCI PIVOTANTE ACCES POMPIERS NORME BDR AVEC CADENAS ET CLEF

JE CHERCHE UNE BARRIERE URBAINE AVEC SON DESCRIPTIF  SON DESSIN POUR MON CLIENT DANS LES BDR

JE SUIS A LA RECHERCHE  D'UNE BARRIERE AMOVIBLE PIVOTANTE A SCELLER  EN VILLE  POUR LA MAIRIE 

JE VEUX DES RENSEIGNEMENTS POUR LA BARRIERE URBAINE AVEC SES NORMES ET SES POSSIBILITES DE FERMETURE POMPIERS DANS LES BOUCHES DU RHONE 

LA BARRIERE SUZAN 2JM  REPOND A LA DEMANDE DE BARRIERE POUR LA VILLE AVEC SA SECURITE DE FERMETURE POMPIERS .

LA BARRIERE URBAINE C'EST NOTRE METIER DANS LA REGION DEPUIS 20 ANS  JE VEUX UN FABRIQUANT QUI CONNAISSE LE PRODUIT NORMALISE DANS LA SERRURE POMPIERS C4EST SUZAN 2 JM LE SPECIALISTE 

AUSSI BIEN POUR LE SECTEUR URBAIN   LE CHEMIN FORESTIER DANS LA REGION .

BARRIERE URBAINE LIMITATION ACCES POUR POMPIERS .

 

 

 

Publié le : 14/02/2019
Mis à jour le : 09/04/2026
Partager :
Nous écrire
Les champs indiqués par un astérisque (*) sont obligatoires